SPETSES ISLAND MUSEUM
SPETSES ISLAND MUSEUM
Redesign of the permanent exhibition of the museum collections
Agency: 1st Ephorate of Byzantine Antiquities
Year: 2008
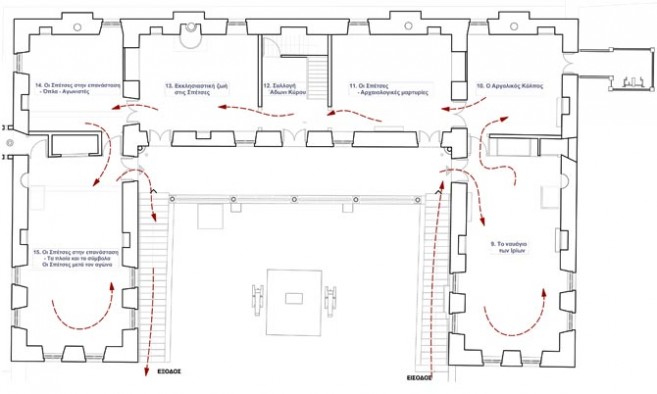
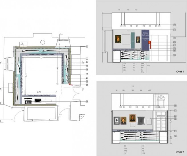
The Museum of Spetses is housed in the Hatzigianni Mexi mansion, a striking building dating back to 1798 with noteworthy architectural features. The museological study set as a goal to respect and highlight the nature of the building and to adapt to the existing space layout, creating and integrating conceptual chapters within the boundaries of each hall. The exhibition infrastructure allows the geometry of the spaces to shine through, along with the openings and the unique aspects of the building. The constructs are located at a distance from the shell of the building, in order to underline that they belong to the exhibition layout and not the original building. The display cases all follow a standardized form and design. They are simply and sparely formed in order to meet the requirements of exhibiting a variety of dissimilar material.In the two large symmetrical rooms on the upper level, 9 and 15, the women’s quarters, which open up on 3 sides, the exhibition structure was placed along the centre with longitudinal constructs that follow a similar rationale and leave the space untouched in both rooms, in order to underline their symmetry.Room 9 contains the wreck of Iria and a central construction is created, which divides the space along three different routes / chapters:The path of the ship’s voyage, along with the stops it made, where it loaded merchandise.The shipwreck, a construct with the minimalist form of a ship’s hull, holding the amphorae found on the sea bed. The process and techniques of underwater archaeology.A metal bridge allowing visitors to see the wreck and its amphorae from above, as it was first seen by the divers, who took part in the dig.The construction in room 15 corresponds to that in room 9: A longitudinal central horizontal display case, with an inclined surface containing paintings and documents concerning the struggle for independence. Along the centre of the display case, ship’s figureheads arise out of the emptiness, lit from below. The figureheads from the period of the Greek War of Independence are placed in line, facing the visitors, while the “water fairy”, the figurehead that marks the post-revolutionary period, faces the sea.In the room that contains displays of traditional dress, there are vertical display boxes with metal frames and crystal, which turn around their own axis. They are dotted around the room, symbolizing people, who appear to greet visitors to the place and era. There is an audio system, through which the shapes tell their story, an everyday narrative of their times.Three parallel routes / readings exist, that visitors can take through the museum:
A visit to the museum’s permanent collection
This concerns its exhibits and the history of the island of Spetses. Our intention was to provide various levels of information for the museum’s permanent collection, with visual interest and information organisation. Visitors can be immediately recognise these levels at a glance, as they are located in a specific position in each room and are similar in size and colour. In this manner visitors can choose the level of information they receive, as well as the length of their visit, deciding whether to follow all these levels or only some.
A visit to the Hatzigianni Mexi mansion – “the key”.
The aim of the museum is to present the building itself, the Hatzigianni Mexi mansion, as well as the main collections, as this is a noteworthy building of its time and has distinguished features. The “key” is placed at the entrance to each room, linking together the building and the museological construction.
A child’s / family’s tour of the museum – the “broad bean”
This includes all the points of interest that will fascinate children both from the permanent collection and from the building, offering parents a thread they can follow with their children throughout their visit to the museum. Each room offers an opportunity for a story, a myth, a song, a recipe or a game connected to a certain exhibit or a spatial element. This presentation is through video, audio or experiential media, allowing children to focus their interest and perceive a simplified edition of the central narrative thread for each unit.

